Finnentrop: Frisch renovierte Zweiraumwohnung mit Terrasse und Garage
Objektbeschreibung:
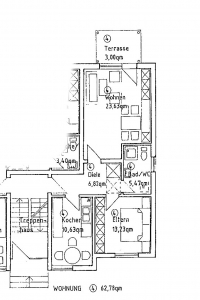
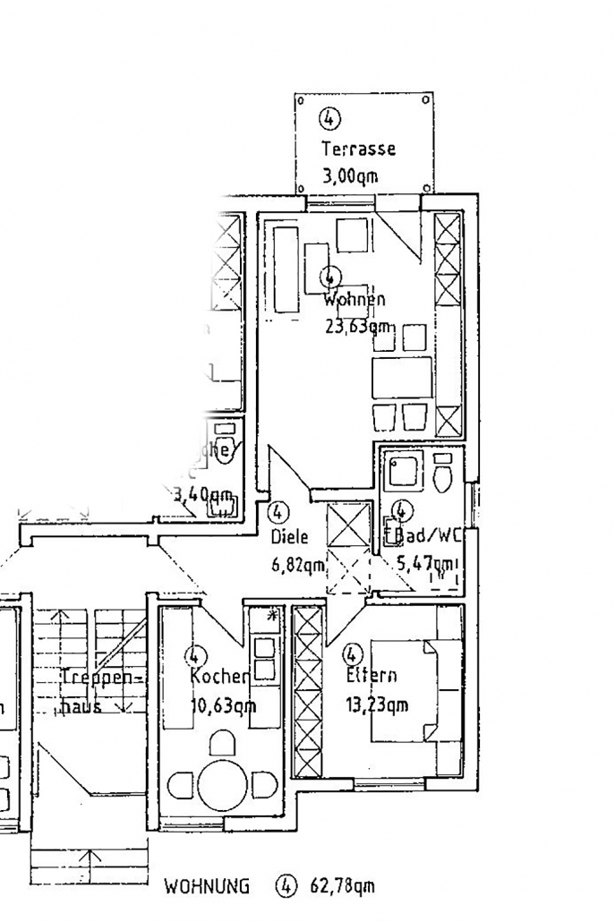
Die Wohnung befindet sich im Erdgeschoss eines 1992 errichteten Mehrparteienhauses mit 12 Wohneinheiten. Die Wohnanlage ist gepflegt und wird von einer sehr zuverlässigen Hausverwaltung betreut. Die Wohnung erreichen Sie vom Hauseingang aus durch nur wenige Stufen, eine halbe Etage versetzt. Über die Terrasse gibt es aber auch die Möglichkeit, ebenerdig in die Wohnung zu gelangen.
Durch die Eingangsdiele, die in Wohn-/Essbereich, Schlafzimmer, Küche und Badezimmer führt, betreten Sie die Wohnung. Auf die nach Südwesten ausgerichtete Terrasse gelangen Sie vom großen Wohn-/Essbereich aus. Die Küche bietet ausreichend Platz, um einen Frühstückstisch aufzustellen.. Das Duschbad, in dem Sie auch eine Waschmaschine aufstellen können, hat ein Fenster.
Die Wohnung steht zurzeit leer und wurde frisch renoviert. Das Badezimmer ist komplett hell und modern neu gestaltet, alle Wände sind frisch gestrichen und in der gesamten Wohnung ist ein neuer Vinylboden verlegt. Sie können also direkt einziehen.
Außerdem gehören zur Wohnung ein Kellerraum und ein Stellplatz in einer geräumigen Einzelgarage mit Stromanschluss. Wasch- und Trockenraum und Fahrradkeller werden gemeinschaftlich genutzt.
Merkmale:
– zentral und dennoch ruhig gelegen
– Terrasse
– schöner Grundriss
– frisch renoviertes Duschbad mit Tageslicht
– neuer Vinylfußboden in allen Räumen
– Wände frisch gestrichen
– Kellerraum
– PKW Stellplatz in Einzelgarage mit Stromanschluss
– gemeinschaftlich genutzte Waschküche
– ebenerdiger Zugang möglich
Lage:
Das Grundstück liegt in zweiter Reihe eines ruhigen, gepflegten und beliebten Wohngebieten in Finnentrop. Einkaufsmöglichkeiten, Ärzte, Bäckerei, Restaurant, Sportplatz, Schwimmbad und Schulzentrum erreichen Sie fußläufig. Banken sind im Ort zu finden. Auch der Bahnhof liegt unweit der Immobilie.
Sonstiges:
UM WEITERE INFORMATIONEN ZU BEKOMMEN ODER UM EINEN BESICHTIGUNGSTERMIN ZU VEREINBAREN SENDEN SIE UNS BITTE EINE MAIL.
BITTE BEACHTEN SIE, DASS NUR ANFRAGEN MIT ANGABE VON VOLLSTÄNDIGEM NAMEN, ANSCHRIFT UND TELEFONNUMMER BEANTWORTET WERDEN KÖNNEN.
| PLZ/ Ort | 57413 Finnentrop |
| Baujahr | 1992 |
| Wohnfläche | ca. 62,78 m² |
| Energieausweistyp | Energieverbrauch |
| Energieverbrauchswert | 107,6 kWh/(m²*a) |
| Energieeffizienzklasse | D |
| Wesentlicher Energieträger | Gas |
| Heizungsart | Zentralheizung |
| Kaufpreis | 126.000,- € (incl. Garage) |
| Käufercourtage | 3,57 % vom Kaufpreis incl. 19 % MwSt. |



