Giersberg: Helles, geräumiges Haus mit großer Loggia und traumhaftem Ausblick
Objektbeschreibung:
Ursprünglich wurde das Gebäude 1971 als Bungalow an das Elternhaus angebaut und im Jahre 1987 ein teilweise zu Wohnraum ausgebautes Dachgeschoss aufgesetzt. In diesem Zuge fand eine hochwertige, umfassende Modernisierung statt. 1995 folgte der Ausbau des bisher nicht ausgebauten Teils des Dachgeschosses zu Wohnraum. So entstand ein großzügiges, helles Einfamilienhaus mit Einliegerwohnung.
Das Highlight des Hauses stellt der Wohnraum hinter dem fast komplett verglasten Giebel mit einer großen, knapp drei Meter tiefen Loggia dar. Hier blicken Sie zur Abendsonne über das Tal.
Die Raumaufteilung ist ungewöhnlich, lässt sich aber mit überschaubarem Aufwand an die Bedürfnisse einer Familie anpassen. So könnte zum Beispiel im Ergeschoss eine Schlafetage mit 4 Zimmern und zwei Bädern entstehen und das Dachgeschoss als Wohnetage mit Ausblick genutzt werden. Auch hier gäbe es einen weiteren Schlafraum und ein Badezimmer.
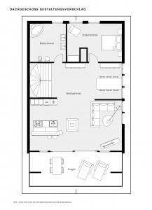
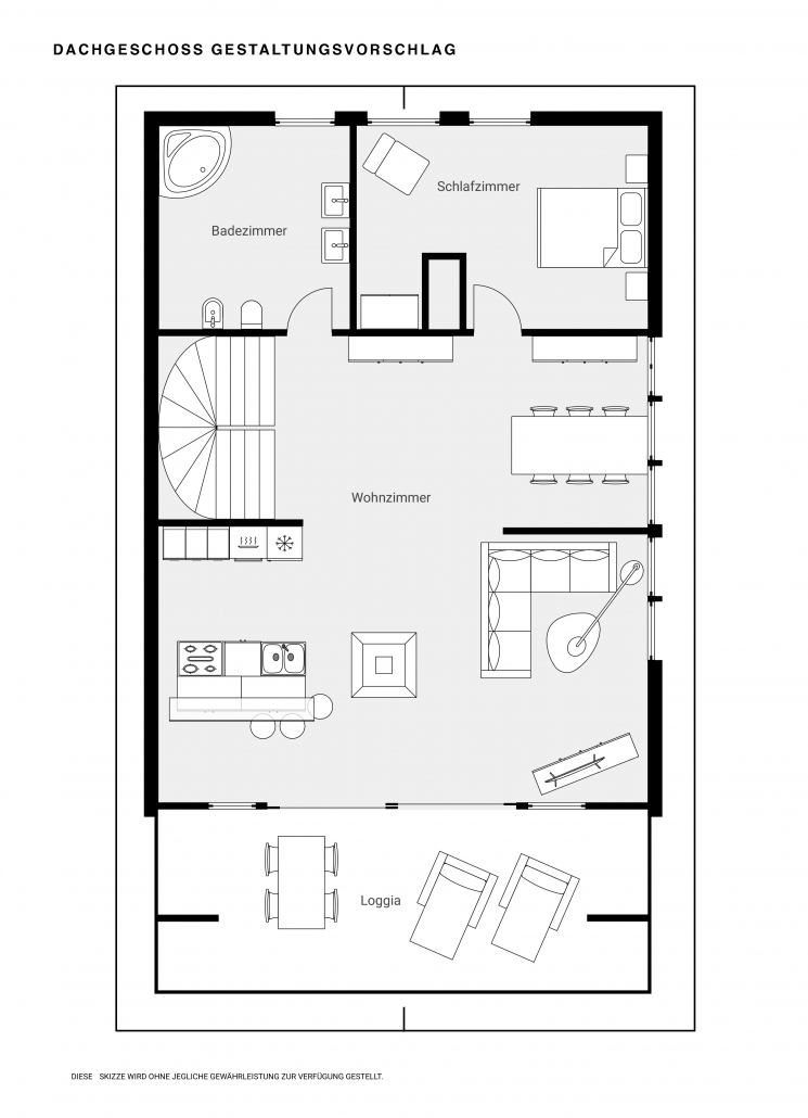
Die aktuelle Raumaufteilung schaut wie folgt aus:
Sie betreten das Haus durch eine freundliche, große Eingangsdiele. Zur Linken befindet sich ein großer Wohnraum mit offener Küche. Auf der rechten Seite der Diele sind ein Schlafzimmer, das Duschbad und ein großes Badezimmer mit Eckbadewanne untergebracht.
Über die geschmackvolle Holztreppe gelangen Sie in den großzügigen, offenen Wohnraum und gehen auf die große Glasfront mit dem davor liegenden, sich über die ganze Hausbreite erstreckenden, überdachten, sehr tiefen Balkon zu. Auch auf dieser Ebene finden sie ein großes Badezimmer und einen Schlafraum.
Im Untergeschoss ist die kleine Einliegerwohnung mit Flur, Duschbad, Küche, Wohnraum und Schlafzimmer. Das Schlafzimmer könnte auch der Hauptwohnung zugeschlagen werden. Der hintere Bereich des Geschosses ist in Flur, Waschküche, Heizungsraum mit Öllager und zwei weitere Kellerräume unterteilt.
Das Grundstück ist pflegeleicht angelegt und bietet ausreichend Platz für Spielgeräte. Eine Garage ist ebenfalls vorhanden.
Ausstattung:
– begehrte Lage am Giersberg
– die Natur direkt um die Ecke
– außergewöhnliche, tiefe Loggia mit wunderbarem Ausblick
– große Fensterfront im Giebel
– große, helle Räume
– viele Nutzungsmöglichkeiten
– 4 Bäder
– Einliegerwohnung
– viel Stauraum im Keller
– Garage
Lage:
Das Grundstück mit unverbaubarem Fernblick liegt in einer ruhigen Seitenstraße am beliebten Weidenauer Giersberg. Die Einkaufszentren von Siegen und Weidenau erreichen Sie hervorragend und schnell mit öffentlichen Verkehrsmitteln, dem Fahrrad oder dem Auto. Den täglichen Bedarf können Sie auch fußläufig decken.
Nur wenige Meter entfernt finden Sie schöne Wege für Spaziergänge oder Joggingrunden mit oder ohne Hund. Ihre Kinder können über große Wiesen toben und in einem kleinen Waldstück spielen.
Schulen und Kindergärten befinden sich ebenfalls in der Nähe.
Sonstiges:
UM WEITERE INFORMATIONEN ZU BEKOMMEN ODER UM EINEN BESICHTIGUNGSTERMIN ZU VEREINBAREN SENDEN SIE UNS BITTE EINE MAIL.
BITTE BEACHTEN SIE, DASS NUR ANFRAGEN MIT ANGABE VON VOLLSTÄNDIGEM NAMEN, ANSCHRIFT UND TELEFONNUMMER BEANTWORTET WERDEN KÖNNEN.
| PLZ/ Ort | 57076 Siegen |
| Baujahr | 1971, Aufstockung/Umbau 1987, Ausbau 1995 |
| Wohnfläche | ca. 235 m² |
| Grundstücksfläche | ca. 344 m² |
| Energieausweistyp | Energiebedarf |
| Energieverbrauchswert | 295,4 kWh/(m²*a) |
| Energieeffizienzklasse | H |
| Wesentlicher Energieträger | Heizöl |
| Heizungsart | Zentralheizung |
| Kaufpreis | 449.000,- € |
| Käufercourtage | 3,57 % vom Kaufpreis incl. 19 % MwSt. |




